Villa in Benissa
- €1.495.000
Beschreibung
Modernes Villenprojekt in Benissa Costa – Nur 5 Minuten vom Strand La Fustera entfernt
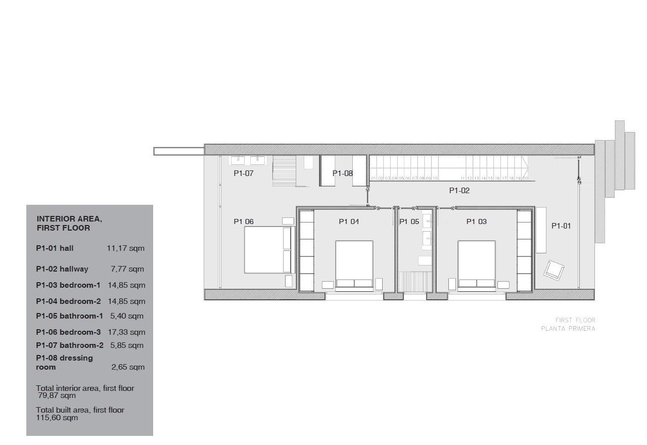
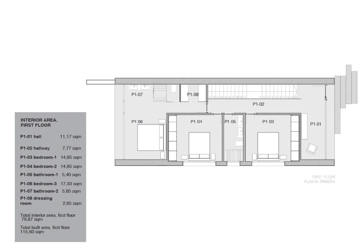
Lassen Sie sich von diesem eleganten und stilvollen Villenprojekt mit privatem Pool verzaubern, das in einer modernen Wohngegend nur einen Steinwurf vom idyllischen Strand von La Fustera entfernt liegt. Diese Anlage kombiniert zeitgenössisches Design, hochwertige Ausstattung und eine hervorragende Lage und ist damit die ideale Wahl für alle, die Komfort und Luxus an der Costa Blanca suchen. Die Villa bietet eine intelligente Aufteilung über zwei Etagen. Im Erdgeschoss finden Sie ein geräumiges und helles Wohn-Esszimmer, das dank der großen Schiebefenster direkten Zugang zur Terrasse und zum Pool bietet. Die moderne, offene Küche ist vollständig in den Wohnbereich integriert, so dass Kochen und Zusammensein perfekt miteinander vereinbar sind. Eine Glasschiebetür führt zu einer gemütlichen 38 m² großen Terrasse, einem ruhigen Ort zum Entspannen oder um die Natur zu genießen. Außerdem gibt es eine stilvolle Gästetoilette, die den Komfort und die Funktionalität dieser Etage noch erhöht. Im Obergeschoss befindet sich das Hauptschlafzimmer mit eigenem Bad, ein luxuriöser Rückzugsort, an dem Sie sich vollkommen entspannen können. Neben dem Hauptschlafzimmer befinden sich zwei geräumige Doppelschlafzimmer, die sich ein modernes Badezimmer teilen, ideal für Gäste oder Familienmitglieder. Die großen Fenster in allen Schlafzimmern sorgen für viel natürliches Licht und eine Verbindung zur umliegenden Natur. Das Villenprojekt wurde mit viel Liebe zum Detail und unter Verwendung von hochwertigen Materialien entworfen. Alle Räume sind mit einer effizienten Klimaanlage mit unabhängiger Temperaturregelung ausgestattet, die für ein optimales Raumklima sorgt. Die doppelt verglasten Fenster mit Wärmebrückenunterbrechung und die Porzellanböden – erhältlich in Zementgrau oder Beige – tragen zum modernen und hochwertigen Charakter der Immobilie bei. Die Lage dieser Villa ist einfach perfekt. Das flache Grundstück befindet sich in einem modernen Wohngebiet mit ausgezeichneter Infrastruktur und überdurchschnittlich großen Grundstücken, die mehr Privatsphäre und Platz bieten. Nur 1,9 km vom Sandstrand La Fustera entfernt, genießen Sie eine einzigartige Kombination aus Ruhe und Nähe zu Annehmlichkeiten, Restaurants und Freizeitangeboten. Diese Villa ist eine einzigartige Gelegenheit, in ein modernes Traumhaus zu investieren, das sich perfekt für das mediterrane Leben eignet. Mit ihren klaren Linien, dem durchdachten Design und der schönen Lage bietet diese Immobilie alles, was Sie für ein luxuriöses und entspanntes Leben an der Costa Blanca brauchen. Kontaktieren Sie uns noch heute für weitere Informationen oder um die Möglichkeiten dieses besonderen Projekts zu entdecken!
Adresse
-
City: Benissa
-
State/county: Alicante
-
Area: La Fustera
-
Country: Spanien
Details
-
Referenz HZ4446BEN
-
Preis €1.495.000
-
Wohnunggröße 193
-
Grundstückgrösse 1350
-
Schlafzimmer 3
-
Badezimmer 3
-
Art Villa
-
Immobilienstatus Neues Gebäude
-
Pool Privat
Kontakt Informationen
Ähnliche Angebote
- Costa Blanca Buyers by Yohanne & Jacqueline













