Villa in Pedreguer
- €625.000
Beschrijving
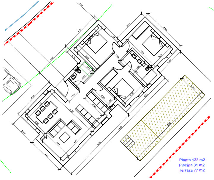
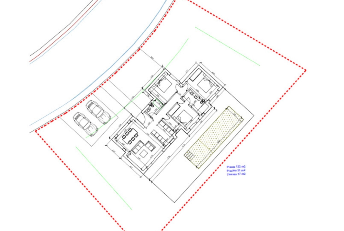
Moderne gelijkvloersnieuwbouwvilla te koop in Pedreguer, het project heeft al een bouwlicentie en kan opgeleverd worden in 12 maanden. De villa biedt een mooi panoramisch uitzicht op de prachtige omgeving, ze is georienteerd op het zuiden en ligt kort bij het centrum van Pedreguer. Er is een inkomhal, een woon eetkamer met een open keuken, een bijkeuken,2 tweepersoonsslaapkamers die een badkamer delen en een master bedroom met een en suite badkamer.De totale oppervlakte van de villa is 122m2. Buiten is er een terras van 77m2 met een zwembad van 10 x 3m.
Adres
-
City: Pedreguer
-
State/county: Alicante
-
Zip/Postal Code: 03750
-
Area: Monte Solana
-
Country: Spanje, Spanje, Spanje
Details
-
Referentie HZ3578PED
-
Prijs €625.000
-
Bebouwd 230
-
Perceelgrootte 719
-
Slaapkamers 3
-
Badkamers 2
-
Parkeerplaats 1
-
Bouwjaar 2025
-
Type Villa
-
Woningstatus Nieuwbouw
-
Zwembad Privé
-
Uitzicht Open
Contactgegevens
Vergelijkbare woningen
- Costa Blanca Buyers by Yohanne & Jacqueline





