Appartement in Javea
- €850.000
Description
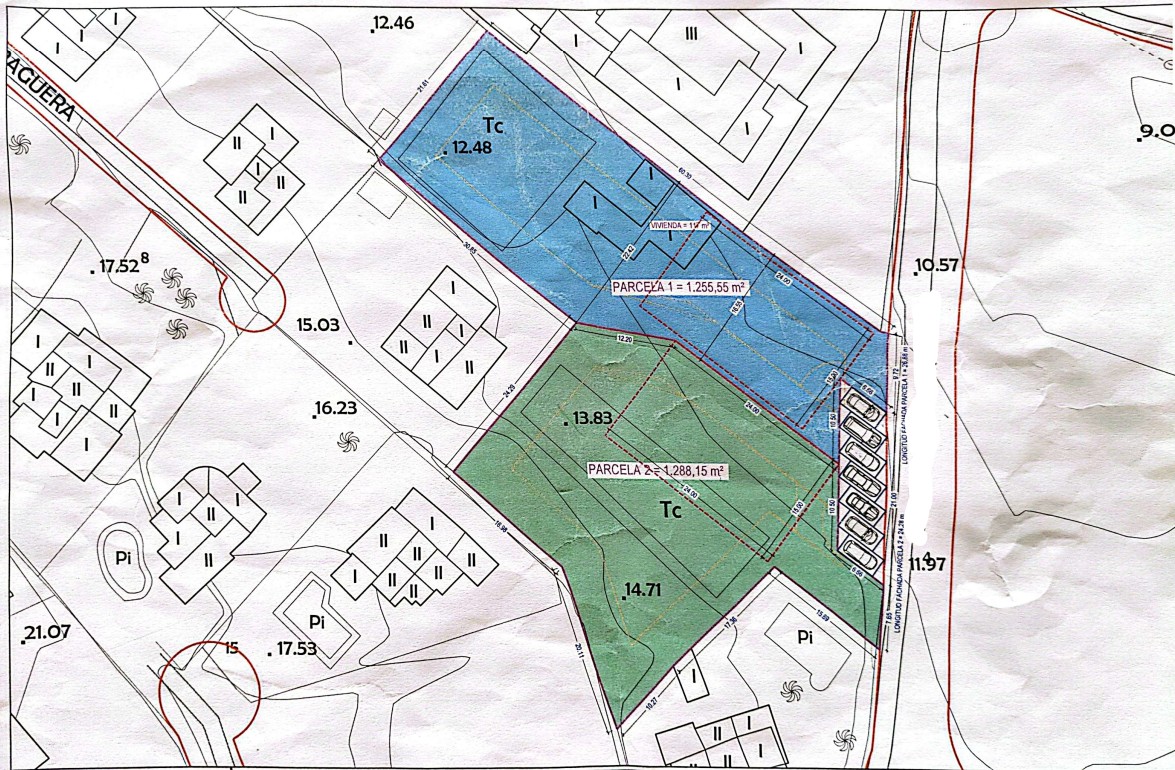
Interesting for investors – Plot of 2,600 m2 with house and possibility of division into two building plots
This plot is located a very short distance from the sandy beach of Jávea and offers an excellent investment opportunity. The plot can be perfectly divided into two separate building plots of about 1,300 m2 each, suitable for realising two luxury villas.
Currently, the plot contains a single-storey villa with a built-up area of 152 m². The property features a living room with open kitchen, a second living-dining room with closed kitchen, three bedrooms, two bathrooms and a patio with a storage room.
This plot is within walking distance of Jávea’s sandy beach and enjoys an excellent location near all amenities. Supermarkets, restaurants, doctors’ surgeries, sports facilities and other daily necessities are all within walking distance. This location combines privacy with the comfort of a central location.
Address
-
City: Javea
-
State/county: Alicante
-
Area: Adsubia
-
Country: Spain
Details
-
Property ID HZ4544JAV
-
Price €850.000
-
Property Size 152
-
Plot size 2600
-
Bedrooms 3
-
Bathrooms 2
-
Parking 10
-
Year Built 1983
-
Type Appartement
-
Property Status Resale
-
Pool No
-
Views Open
Contact Information
- Costa Blanca Buyers by Yohanne & Jacqueline



































