11
Villa en Benissa
  • 4517BEN
  • Referencia
  • Tipo
  • Villa
  • 4
  • Dormitorios
  • 4
  • Baños
  • 458
  • Construido
  • 1500
  • Tamaño terreno

Descripción

Esta villa de nueva construcción se construirá en una amplia parcela de 1500 m2 en la lujosa urbanización Raco de Galeno a 2 km de la hermosa costa de Benissa.

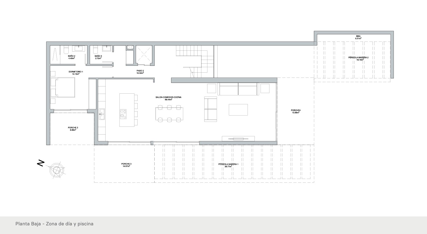
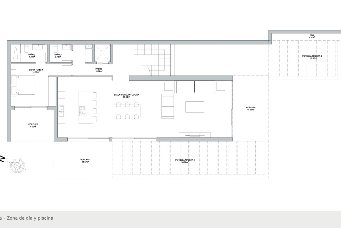
La villa tiene una superficie total construida de 459 m2 distribuidos en dos plantas + sótano con garaje doble. La planta baja consta de un amplio salón-comedor con una moderna cocina americana, un dormitorio con baño en suite y terraza privada y un aseo de invitados. En la planta superior hay otros tres lujosos dormitorios, cada uno con baño en suite y vestidor. Un dormitorio tiene acceso a una terraza privada a través de ventanas correderas y los otros dos dormitorios comparten una terraza muy amplia. El sótano consta de un garaje con espacio para aparcar dos coches, un hall de entrada y un aseo de invitados. En el exterior, hay una piscina rodeada de varias terrazas cubiertas y descubiertas. La villa tiene un amplio camino de entrada con acceso al garaje. Se instalará una preinstalación para la calefacción de la piscina y una preinstalación para un sistema de alarma. El sistema de aire acondicionado que se está instalando es el sistema AEROTHERMIA para calefacción y refrigeración y suelo radiante en toda la casa con sistema AIRZONE.

El proyecto ya tiene licencia y se puede construir en un año.

Dirección

  • City: Benissa
  • State/county: Alicante
  • Area: Raco de Galeno
  • Country: España

Detalles

  • Referencia HZ4517BEN
  • Precio €2.995.000
  • Construido 458
  • Tamaño terreno 1500
  • Dormitorios 4
  • Baños 4
  • Tipo Villa
  • Estado de la propiedad Nueva construccion
  • Piscina Privado
  • Vistas Mar

Información de contacto

Costa Blanca Buyers by Yohanne & Jacqueline
  • Costa Blanca Buyers by Yohanne & Jacqueline

Consultar sobre esta propiedad

Listados similares

Comparar listados

Comparar